- Pakiet

nagrzewnica elektryczna
Centrale nawiewne VEKA INT EKO służą do dostarczania świeżego powietrza do pomieszczeń, mogą być sterowane za pomocą sterowników UNI i PRO.
• Nagrzewnica elektryczna.
• Zintegrowana przepustnica powietrza z siłownikiem.
• Zainstalowany presostat.
• Mała wysokość - idealny do instalacji pod sufitami.
• Energooszczędne i ciche wentylatory EC.
• Opcjonalna klasa filtrów: M5.
• Montaż stroną konserwacyjną - w górę i w dół.
• Obudowa malowana proszkowo (RAL 7040).
• Obudowa niewielkich rozmiarów malowana proszkowo.
• Sterowanie nagrzewnicą elektryczną: 0-10V.
• Pełny zintegrowany system automatyki Plug&Play.
• Możliwość kontroli pracy agregatu chłodniczego.
• Możliwość podpięcia czujników CO2 i HR.
• Izolacja akustyczna i termiczna ścian zewnętrznych: 30 mm.
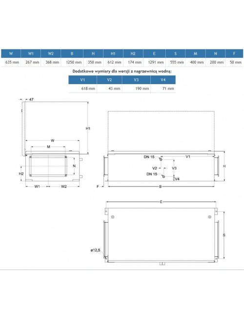
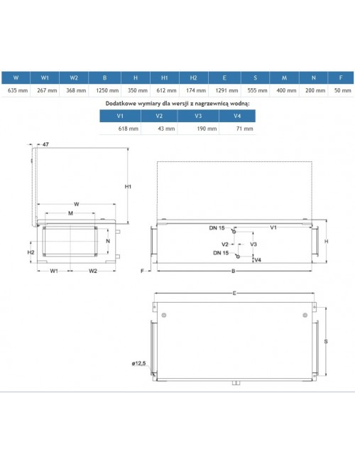
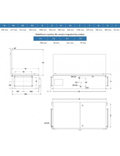
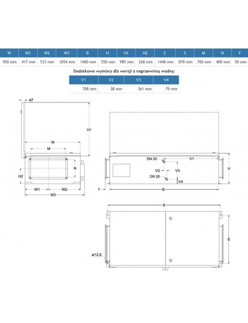
WYMIARY URZĄDZEŃ ORAZ KARTY KATALOGOWE DOSTĘPNE NA ZAPYTANIE
pokaż wszystkie modele
pokaż mniej modeli
Product Comments
Chwilowo nie możesz polubić tej opinii
Zgłoś komentarz
Zgłoszenie wysłane
Twoje zgłoszenie nie może zostać wysłane