
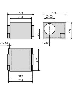
Obudowa
Obudowa wentylatora wykonana jest z ocynkowanej blachy stalowej. Od strony wlotowej i wylotowej zastosowano znormalizowane króćce przyłączeniowe wyposażone w gumowe uszczelki. Konstrukcja zbliżona jest do tłumika. Izolację akustyczną stanowi 40 mm warstwa wełny mineralnej, zabezpieczona od wewnątrz perforowaną blachą.
Zdejmowana klapa rewizyjna ułatwia czyszczenie i konserwację wentylatora. Zespół wirnik-silnik oraz spiralną obudowę wewnętrzną łatwo można wymontować.
Wirnik
Dwustronnie ssące koło wirnikowe wysokiej sprawności, z łopatkami wygiętymi do przodu, wykonane jest z ocynkowanej blachy stalowej. Osadzane jest bezpośrednio na obudowie silnika. Zespół wirnik-silnik wyważany jest statycznie i dynamicznie, zgodnie z normą DIN ISO 21940-11 w klasie G 6.3.
Podłączenie elektryczne
Podłączenia zasilania dokonuje się przez puszkę podłączeniową znajdującą się na obudowie wentylatora, wykonaną w klasie szczelności IP54. Wentylator powinien zostać podłączony zgodnie ze znajdującym się w puszce schematem oraz zgodnie z obowiązującymi przepisami bezpieczeństwa.
Silnik
Napęd wentylatora stanowi energooszczędny silnik EC (komutowany elektronicznie) z wirującą obudową, wykonany w klasie szczelności IP44.
Silnik charakteryzuje się bardzo wysoką sprawnością, niewielkimi rozmiarami i wyjątkowo cichą pracą. Nie wymaga konserwacji.
Wbudowany, inteligentny układ sterujący umożliwia płynną regulację obrotów wentylatora oraz wiele funkcji dodatkowych, np. regulację ciśnienia, wydajności lub sterowanie jakością powietrza.
Status ErP
Wentylator spełnia wymagania rozporządzenia wykonawczego Dyrektywy ErP (2009/125/WE), tj. Rozporządzenia Komisji (UE) nr 1253/2014 (Lot6), obowiązujące od 01.01.2018 r.
Product Comments
Chwilowo nie możesz polubić tej opinii
Zgłoś komentarz
Zgłoszenie wysłane
Twoje zgłoszenie nie może zostać wysłane