- Pakiet

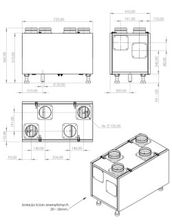
Rekuperator PROMINI 300 V/H to kompletne urządzenie wentylacyjne z możliwością zmiany układu króćców zapewniające filtrację i dopływ świeżego powietrza do pomieszczeń, a także usuwanie powietrza zanieczyszczonego
Rekuperator PROMINI 300 V/H to kompletne urządzenie wentylacyjne z możliwością zmiany układu króćców zapewniające filtrację i dopływ świeżego powietrza do pomieszczeń, a także usuwanie powietrza zanieczyszczonego. Służące do wentylacji domów jednorodzinnych lub obiektów usługowych. Charakteryzuje się wydajnością do 300m3/h.
ZALETY PRODUKTU:
OBUDOWA - wykonana w całości ze stali malowanej proszkowo, zaizolowana. Charakteryzuje się doskonałymi właściwościami tłumienia drgań, hałasu
WYMIENNIK CIEPŁA - najskuteczniejszy i niezawodny krzyżowo-przeciwprądowy polistyrenowy wymiennik o wysokiej efektywności wymiany ciepła (sprawność do 98%) renomowanych firm takich jak RECAIR, CORE posiadających wieloletnie doświadczenie, oferujących swoje produkty najlepszym na runku producentom central.
WENTYLATORY - zastosowane zostały silniki elektro-komutatorowe prądu stałego (EC). Silniki EC zapewniają wysoką wydajność i regulację w pełnym zakresie prędkości obrotowej wentylatora.
AUTOMATYCZNY LUB MECHANICZNY BYPASS – zapewniający w razie potrzeby możliwość schłodzenia pomieszczenia dzięki bezpośredniemu dopływowi chłodnego powietrza do pomieszczeń z zewnątrz w okresie letnim bez konieczności zastępowania wymiennika kasetami letnimi, co z perspektywy czasu i obsługi jest dość uciążliwe w eksploatacji.
NAGRZEWNICA WSTĘPNA – uruchamiana automatycznie. Zapobiega zamarzaniu wymiennika. Moc 0,5KW.
NOWOCZESNY STEROWNIK - zaawansowana automatyka pozwala precyzyjnie dostosować parametry centrali pod bieżącą instalację oraz panujące warunki pogodowe. Podstawowe funkcje automatyki centrali:
pokaż mniej modeli
Product Comments
Chwilowo nie możesz polubić tej opinii
Zgłoś komentarz
Zgłoszenie wysłane
Twoje zgłoszenie nie może zostać wysłane